Zpět Zpět na výpis nemovitostí

Prostorná chalupa se dvěma obytnými jednotkami v klidné obci Damíč – Soběšice (okres Klatovy) 2️⃣

Stav

Aktivni

Obytná plocha

166 m2

Plocha pozemku

522

Energeticky štítek

G

Míst k parkování

4

Plyn

plynovod

4 090 000 Kč

Kalkulačka financování Kalkulačka financování

Spočítejte si, na kolik vás vyjde hypotéka

Spočítejte si, na kolik vás vyjde hypotéka

Spočítejte si, na kolik vás vyjde hypotéka

Nějaký zajímavý podnadpis

Více o této nemovitosti

Nabízíme k prodeji chalupu v malebné obci Damíč, část obce Soběšice (okres Klatovy), která je ideální pro rekreační využití na Šumavě. Nemovitost nabízí dostatek prostoru pro rodinu i přátele a zároveň skvělý potenciál pro úpravy dle vlastních představ.

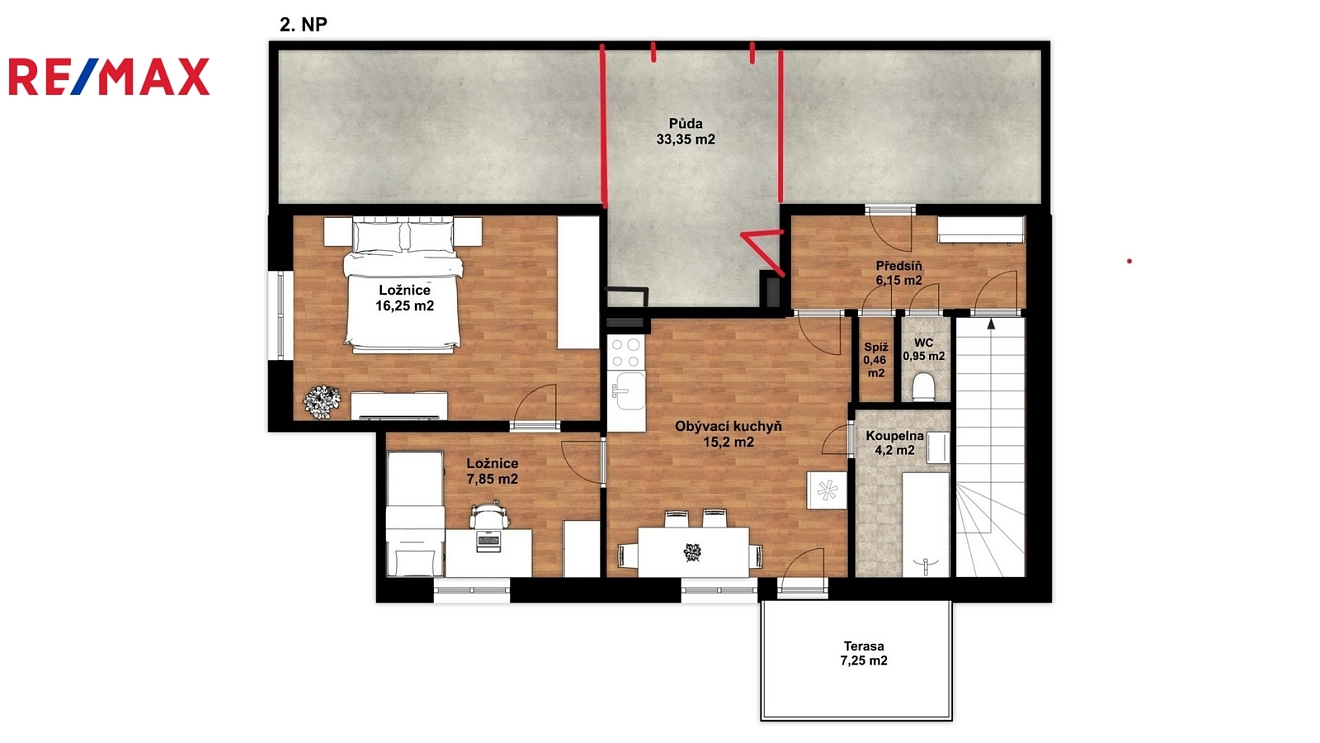
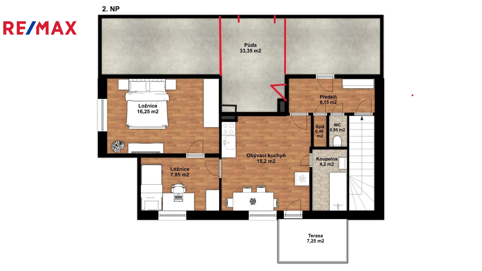
Chalupa disponuje dvěma samostatnými obytnými částmi o dispozici 3+1, každá s vlastní koupelnou a WC. Celková užitná plocha činí 166 m²:
– 1. NP: 82,2 m²
– 2. NP: 84,06 m²

Vstup do domu je společný. Velkou výhodou je možnost rozšíření obytné plochy – přestavbou původního seníku a dřevníku lze vytvořit další obytný prostor pro hosty nebo rekreační apartmán.

Technické informace:

chalupa je obyvatelná po částečné rekonstrukci

vytápění kotlem na tuhá paliva nebo elektrokotlem

napojení na obecní vodovod a kanalizaci

k dispozici také vlastní studna s užitkovou vodou

Součástí nemovitosti je garáž, kotelna, technická místnost a dřevník (zastavěná plocha 139 m²) a zahrada o výměře 256 m², která poskytuje příjemné zázemí pro odpočinek.

Dalším benefitem je možnost koupě pozemku o celkové výměře 1 414 m², který se nachází naproti domu přes místní komunikaci. Pozemek se skládá ze dvou parcel, z nichž jedna je vedena jako stavební, což nabízí zajímavý potenciál například pro výstavbu dalšího domu, rekreačního objektu nebo jako investici do budoucna.

Pokud hledáte chalupu na klidném místě v krásné přírodě s velkým potenciálem, neváhejte mě kontaktovat pro více informací nebo domluvení prohlídky.

Lokalita

Okres

Ulice

Informace o nemovitosti

Stav

Aktivni

Typ smlouvy

Prodej

Typ nemovitosti

Domy

Technické informace

Obytná plocha

166 m2

Příslušenství

Garáž

Ano

Další informace

Plocha pozemku

522

Energeticky štítek

G

Míst k parkování

4

Plyn

plynovod

Odpad

kanalizace

Doprava

silnice, autobus

Voda

místní zdroj vody, vodovod, Studna

Balkón

Ne

Lodžie

Ne

Navigovat k nemovitosti Navigovat k nemovitosti

Máte zájem o tuto nemovitost?

Kontaktujte mě a domluvme se na prohlídce

Dejte nám vědět, s čím vám můžeme pomoct

Osobně s vámi projdeme každý detail

Preferovaný den prohlídky

Preferovaný čas prohlídky

Nejpozději do 24 hodin se ozveme nazpátek.

O vaše data je u nás postaráno. Přečtěte si naše podmínky pro ochranu os. údajů.

Děkujeme za váš zájem

Vaše informace jsme přijali a brzy se vám ozveme.

Váš požadavek byl úspěšně odeslán

Dejte nám vědět, s čím vám můžeme pomoct

Osobně s vámi projdeme každý detail

Profesionální prodej na klíč

Profesionální prodej na klíč

Postaráme se o celý proces – od stanovení ceny, přes inzerci a prohlídky až po kupní smlouvu a předání. Vy se mezitím můžete věnovat tomu, co je pro vás důležité.

Certifikovaní makléři s praxí

Certifikovaní makléři s praxí

Naši makléři jsou odborníci s výbornou znalostí trhu. Díky pravidelnému vzdělávání v RX Akademii vám zaručí hladký a bezpečný průběh celé transakce.

Exkluzivní nabídka nemovitostí

Exkluzivní nabídka nemovitostí

Získejte přístup k prověřeným nemovitostem v Praze a okolí. Díky globální síti RE/MAX vybíráte z široké nabídky s jistotou férového jednání.

Etika a důvěra na prvním místě

Etika a důvěra na prvním místě

Jednáme vždy podle etického kodexu RE/MAX. Důvěra, respekt a transparentnost jsou pro nás základem dlouhodobé spolupráce.